Ο ‘Σχεδιασμός για Όλους’ εστιάζει στη μελέτη και τη κατασκευή προϊόντων, υπηρεσιών, περιβαλλόντων και χώρων με κύριο γνώμονα τη λειτουργικότητα και τη χρήση τους από όσο το δυνατόν περισσότερους ανθρώπους, ανεξαρτήτως φύλλου, ηλικίας, φυσικών χαρακτηριστικών και/ή Αναπηρίας. Συχνά δύναται να συναντήσουμε ‘συνώνυμους’ όρους όπως, Προσβάσιμη σχεδίαση (Accessible Design), Σχεδίαση ανταποκρινόμενη σε όλους (Inclusive Design), Σχεδίαση χωρίς φραγμούς (Burrier free design)

Για την D4A Architecture η Σχεδίαση, η Μελέτη και η Κατασκευή έχουν ιδιαίτερη βαρύτητα καθώς πιστεύουμε ότι πληρώντας τις βασικές προϋποθέσεις για Άτομα με Αναπηρία (ΑμεΑ) βελτιώνουμε τον τρόπο ζωής όλων μας. Δημιουργούμε χώρους οι οποίοι είναι κατάλληλοι για όλη τη διάρκειά της ζωής ενός ατόμου και δεν εστιάζουν απλά στο μέσο όρο ηλικίας του.

Μερικά από τα κυριότερα εμπόδια που συναντούν τα Άτομα με Αναπηρία (ΑμεΑ) είναι:

  • Έλλειψη κεκλιμένων επιπέδων (ραμπών)
  • Ψηλά πεζοδρόμια και σκαλοπάτια στην είσοδο κτηρίων
  • Έλλειψη κατάλληλων χώρων στάθμευσης
  • Έλλειψη κατάλληλα διαμορφωμένων χώρων υγιεινής
  • Εξωτερική και εσωτερική Προσπέλαση κτηρίων (δημοσίων και ιδιόκτητων)
  • Αποκλεισμό από διασκέδαση (εστιατόρια, bar, θέατρα, κινηματογράφοι κ.α.)
  • Αποκλεισμό από εκπαίδευση

Με την σωστή μελέτη και τον ‘Σχεδιασμό για Όλους’ εκτός από Άτομα με Αναπηρία (ΑμεΑ) διευκολύνονται και:

  • Οι ηλικιωμένοι και υπερήλικες
  • Οι συνοδοί Ατόμων με Αναπηρία (ΑμεΑ)
  • Τα μικρά παιδιά κάτω των 5 ετών
  • Γονείς με παιδικά καροτσάκια
  • Γυναίκες στα τελευταία στάδια της εγκυμοσύνης
  • Τα άτομα που πάσχουν από αρθρίτιδα, άσθμα, καρδιακά προβλήματα κτλ
  • Τα άτομα με ασύνηθες σωματικές διαστάσεις
  • Τα άτομα υπό πανικό / έκτακτή ανάγκη
  • Όσοι μεταφέρουν βαριά φορτία

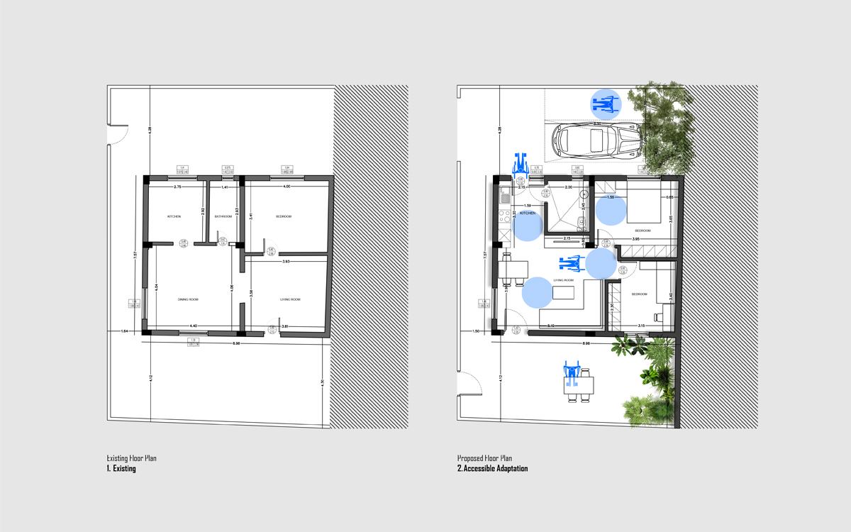
Μελέτη Προσβασιμότητας Κυψέλη

Μελέτη Προσβασιμότητας Ηλιούπολη

Μελέτη Προσβασιμότητας Άνω Κυψέλη

Μελέτη Προσβασιμότητας Γαλάτσι

Μελέτη Προσβασιμότητας Αχαρνές

Μελέτη Προσβασιμότητας Κέντρο Κυψέλης